Dom (bliźniak) – Murowana Goślina – Os. Sienkiewicza – standard deweloperski
Ostatnie 2 segmenty domów na osiedlu Sienkiewicza w Murowanej Goślinie…
PLN 775 640zł
31, Osiedle Pogodne, Plewiska, gmina Komorniki, powiat poznański, województwo wielkopolskie, 62-064, Polska
Sprzedaż
1 199 000zł

Property ID :
None
Opis oferty
Wyjątkowa okazja! Dom w zabudowie szeregowej na kameralnym, zamkniętym osiedlu w Plewiskach – jasny, przestronny, z pięknym ogrodem i dużym potencjałem aranżacyjnym. Takich osiedli już się nie buduje. Ten segment to gotowa baza do stworzenia wygodnego domu.
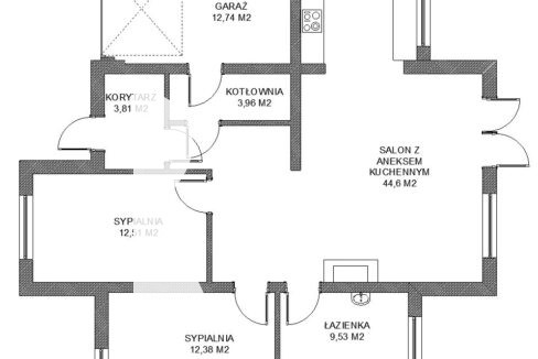
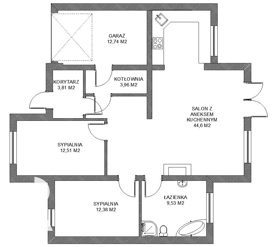
Segment środkowy. Osiedle zamknięte. Plewiska, os. Pogodne.
Powierzchnia użytkowa 100 m². Garaż 13 m². Taras 16 m². Poddasze do adaptacji.
Dom, który daje przestrzeń do życia i rozwoju. Jeśli chcesz zamieszkać w miejscu z charakterem, ciszą i zielenią – warto zobaczyć go osobiście.
Zamieszczona oferta nieruchomości nie stanowi oferty w rozumieniu Kodeksu Cywilnego.
100
3 Pokoje
1 Bathroom
Ostatnie 2 segmenty domów na osiedlu Sienkiewicza w Murowanej Goślinie…
PLN 775 640zł
Wyjątkowa oferta – segment na zamkniętym, kameralnym osiedlu w Plewiskach.…
PLN 1 170 000zł
Pracująca inwestycja na sprzedaż | Chomęcice | Owning a home is a keystone of wealth… both financial affluence and emotional security.
Suze Orman