Przestronne mieszkanie 64,6 m² – Poznań, Łazarz
Przedstawiam wyjątkową ofertę sprzedaży komfortowego i funkcjonalnego mieszkania o powierzchni…
PLN 598 000zł
Plewiska, gmina Komorniki, powiat poznański, województwo wielkopolskie, 62-064, Polska ul. Jesienna 36
Sprzedaż
995 000zł

Property ID :
None
Opis oferty
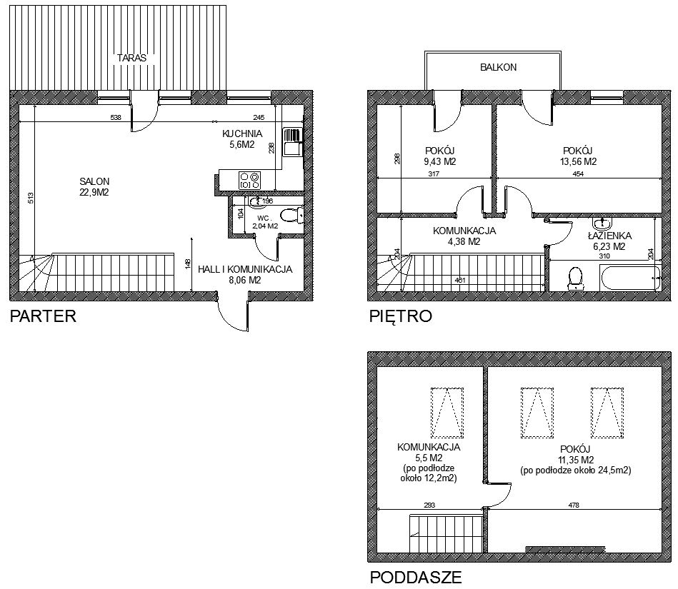
Lokal mieszkalny, 77 m2 + ok. 20m2 zaadoptowanego poddasza, w zabudowie szeregowej, funkcjonalnie rozplanowany na 3 kondygnacjach.
Lokal w bardzo dobrym stanie technicznym, gotowy do wprowadzenia.
Ogród ok. 100 m² z tarasem z kostki granitowej (ok. 40 m²), trawnikiem oraz domkiem narzędziowym.
Rok budowy: 2008.
Stan prawny uregulowany – pełna własność, czysta księga wieczysta.
Prąd, gaz, woda, światłowód.
Idealna propozycja dla rodziny, pary lub osób pracujących zdalnie – poddasze świetnie sprawdzi się jako biuro.
Dla tych, którzy chcą komfort mieszkania z ogrodem i poczuciem domu, ale bez obowiązków związanych z utrzymaniem całej nieruchomości jednorodzinnej.
Zamieszczona oferta nieruchomości nie stanowi oferty w rozumieniu Kodeksu Cywilnego.
Przedstawiam wyjątkową ofertę sprzedaży komfortowego i funkcjonalnego mieszkania o powierzchni…
PLN 598 000zł
Szukasz mieszkania, które daje poczucie przestrzeni, spokoju i jednocześnie pozwala…
PLN 819 000zł
2 pokoje z ogródkiem 55 m² | Wilda | garaż Owning a home is a keystone of wealth… both financial affluence and emotional security.
Suze Orman