Sweet Home Old Town – Apartament przy ul. Półwiejskiej
Sweet Home Old Town – komfortowy apartament przy deptaku Półwiejskiej…
od 217zł doba
3, Piaskowa, Garbary, Stare Miasto, Poznań, województwo wielkopolskie, 61-753, Polska
Sprzedaż
1 199 000zł

Property ID :
None
Opis oferty
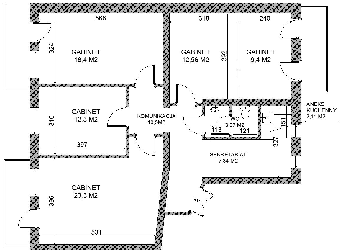
Oferuję na sprzedaż lokal wielkości 99,18 m2 znakomicie nadający się na kancelarię prawną lub biuro branży finansowej, beauty lub każdej innej, dla której liczy się prestiżowa lokalizacja. Kancelaria mieści się na pierwszym piętrze w pięknej kamienicy z 1900 roku, co dodaje jej wyjątkowego, miejskiego charakteru. Obecnie w budynku mieszczą się też 2 inne kancelarie prawne, co wynika z położenia blisko sądu i innych ważnych instytucji miejskich.
Gabinet 1- 18,4 m2
Gabinet 2- 12,3 m2
Gabinet 3- 23,3 m2
Gabinet 4- 12,56 m2
Gabinet 5- 9,4 m2
Sekretariat- 7,34 m2
Aneks kuchenny- 2,11 m2
WC – 3,27m2
Kancelaria jest obecnie w pełni wyposażona we wszystkie potrzebne meble i sprzęty, ale ich koszt nie jest zawarty w cenie lokalu.
Lokal ma wysokie okna (niektóre wnętrza maja po 2 okna) , które wpuszczają mnóstwo naturalnego światła, dzięki czemu wnętrza są jasne i przyjemne do pracy. Wysokie sufity dają odczucie dużej przestrzeni.
Do kancelarii prowadzą dwuskrzydłowe drzwi wejściowe. Główne wejście do klatki schodowej jest wyposażone w domofon. Podłogi w pokojach pokryte są panelami dębowymi, węzeł sanitarny wyłożony jest płytkami na ścianach i na podłodze.
Aneks kuchenny zawiera zlewozmywak, lodówkę podblatową, zabudowę meblarską dolną oraz szafki wiszące. Jest tu miejsce na ekspres do kawy i mikrofalę.
Lokal ma aż trzy duże balkony, które dodają uroku i możliwość cieszenia się widokiem na Stare Miasto. W budynku mieszczą się jeszcze dwie inne kancelarie prawne, co tworzy atmosferę profesjonalizmu i współpracy.
Kamienica jest dobrze wyposażona – ogrzewanie miejskie cieplik zapewnia komfort przez cały rok, a szybki światłowód gwarantuje stabilne połączenie internetowe. Do tego dochodzi parking z tyłu budynku, co jest dużym udogodnieniem dla klientów i pracowników. Miejsca parkingowe można łatwo wynająć w pobliskich biurowcach.
Kamienica przy ul. Piaskowej 3 w Poznaniu znajduje się w bardzo atrakcyjnej i centralnej części miasta. To miejsce jest blisko ważnych instytucji, co czyni je wygodnym i prestiżowym adresem. W okolicy można znaleźć różnorodne punkty usługowe, kawiarnie, restauracje oraz sklepy, co zapewnia komfort codziennego funkcjonowania.
Dodatkowo, kamienica jest niedaleko sądu na Młyńskiej oraz Urzędu Miasta, co jest dużym udogodnieniem dla kancelarii prawnych i ich klientów. Lokalizacja ta zapewnia łatwy dostęp zarówno komunikacją miejską, jak i samochodem – w pobliżu znajduje się parking z tyłu budynku, co ułatwia parkowanie.
Czynsz w wysokości 1000,00 zł zawiera zaliczkę na ogrzewanie wodę, ścieki i śmieci.
Pełna własność z KW
Zamieszczona oferta nieruchomości nie stanowi oferty w rozumieniu Kodeksu Cywilnego.
5 Pokoje
1 Bathroom
Sweet Home Old Town – komfortowy apartament przy deptaku Półwiejskiej…
od 217zł doba
Biuro 93 m² na Senatorskiej — biuro w sercu miasta…
3 590zł
Twój nowy dom, Twoja nowa inwestycja nad Jeziorem Trzesiecko – Szczecinek Owning a home is a keystone of wealth… both financial affluence and emotional security.
Suze Orman