Malownicza działka z WZ pod lasem
Lubisz spędzać czas w spokojnej okolicy, w otoczeniu zieleni? Wyjątkowa działka…
PLN 220 000zł
Kobylnica, gmina Swarzędz, powiat poznański, województwo wielkopolskie, Polska
Sprzedaż
731 850zł

Property ID :
None
Opis oferty
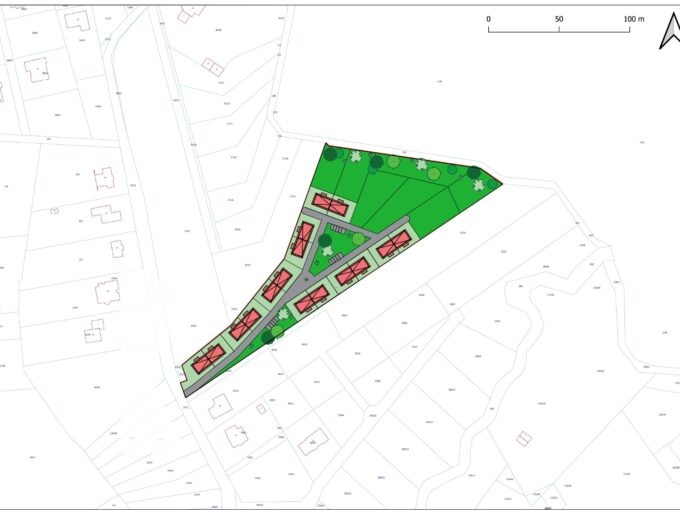
Nieruchomość gruntowa niezabudowana o powierzchni 2091 m², położona przy ul. Bławatkowej w Kobylnicy (gmina Swarzędz).
Działka łączy w sobie spokojną, zieloną lokalizację z doskonałym dostępem do Poznania i infrastruktury miejskiej. Warunki zabudowy mieszkaniowo-usługowej i możliwość podziału dają szerokie pole do działania inwestycyjnego – od budowy domu dla siebie po małą inwestycję deweloperską.
Zamieszczona oferta nieruchomości nie stanowi oferty w rozumieniu Kodeksu Cywilnego.
Lubisz spędzać czas w spokojnej okolicy, w otoczeniu zieleni? Wyjątkowa działka…
PLN 220 000zł
Na sprzedaż atrakcyjna działka budowlana o powierzchni 1 056 m2,…
698 000zł
Loft w Warzelni – Luksus w Industrialnym Stylu Owning a home is a keystone of wealth… both financial affluence and emotional security.
Suze Orman